GESCHÄFTSHAUS UTTIGENSTRASSE
- ORT
Uttigenstrasse Thun - NUTZUNG
Gewerbe - BAUSCHAFT
RUAG - LEISTUNGEN
Studienauftrag - JAHR
2024 - LANDSCHAFT
david & von Arx - VISUALISIERUNG
Selina Bächli
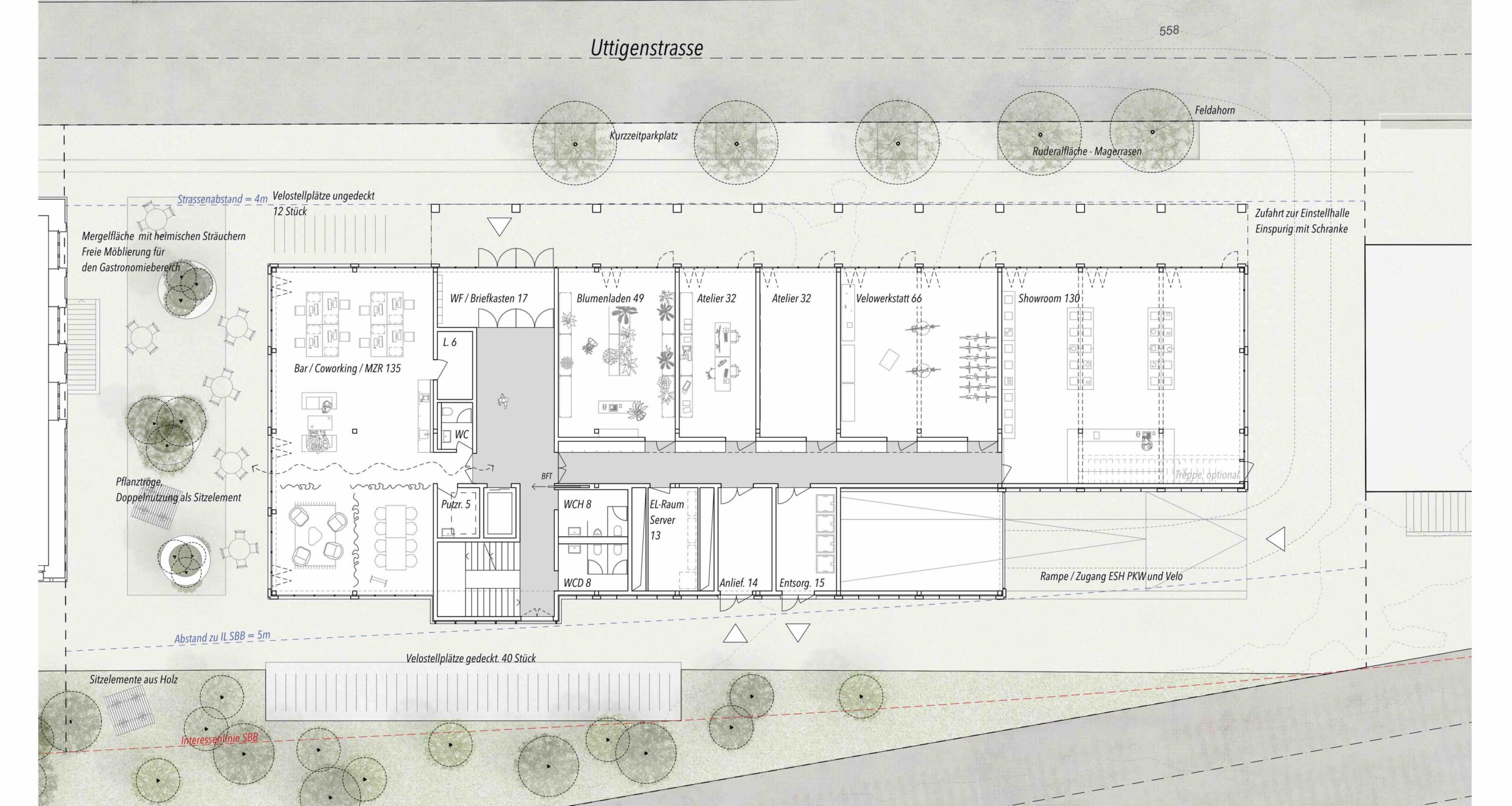
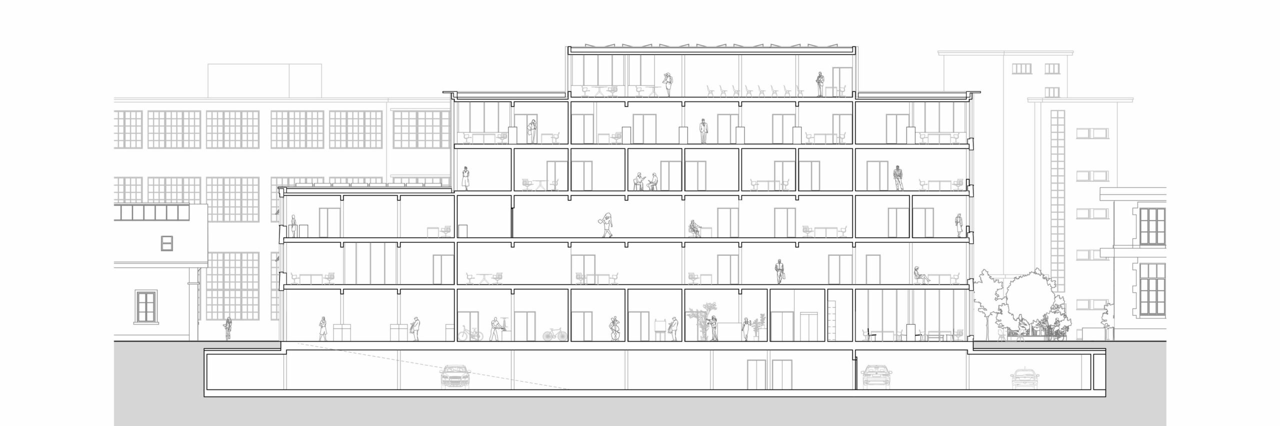
Der Ersatzneubau versteht sich als Initialzündung und wichtiger Auftakt für die anstehende Transformation, indem er in seiner Gestaltung und Positionierung in verschiedene Richtungen vermittelt. Die Architektur folgt dabei einer klaren, differenzierten Formensprache: Zwei ineinandergeschobene Kuben formen das Gebäude, wobei der niedrigere Teil sich zur Ostseite hin orientiert. Dort, zur Uttigenstrasse und zur Aare hin, nimmt das Gebäude die Höhen, Längen und Fluchten der benachbarten schützenswerten Speiseanstalt sowie der Patronenfabrik auf. Dies schafft eine respektvolle, harmonische Einfügung in die bestehende Umgebung und setzt zugleich ein städtebauliches Statement.
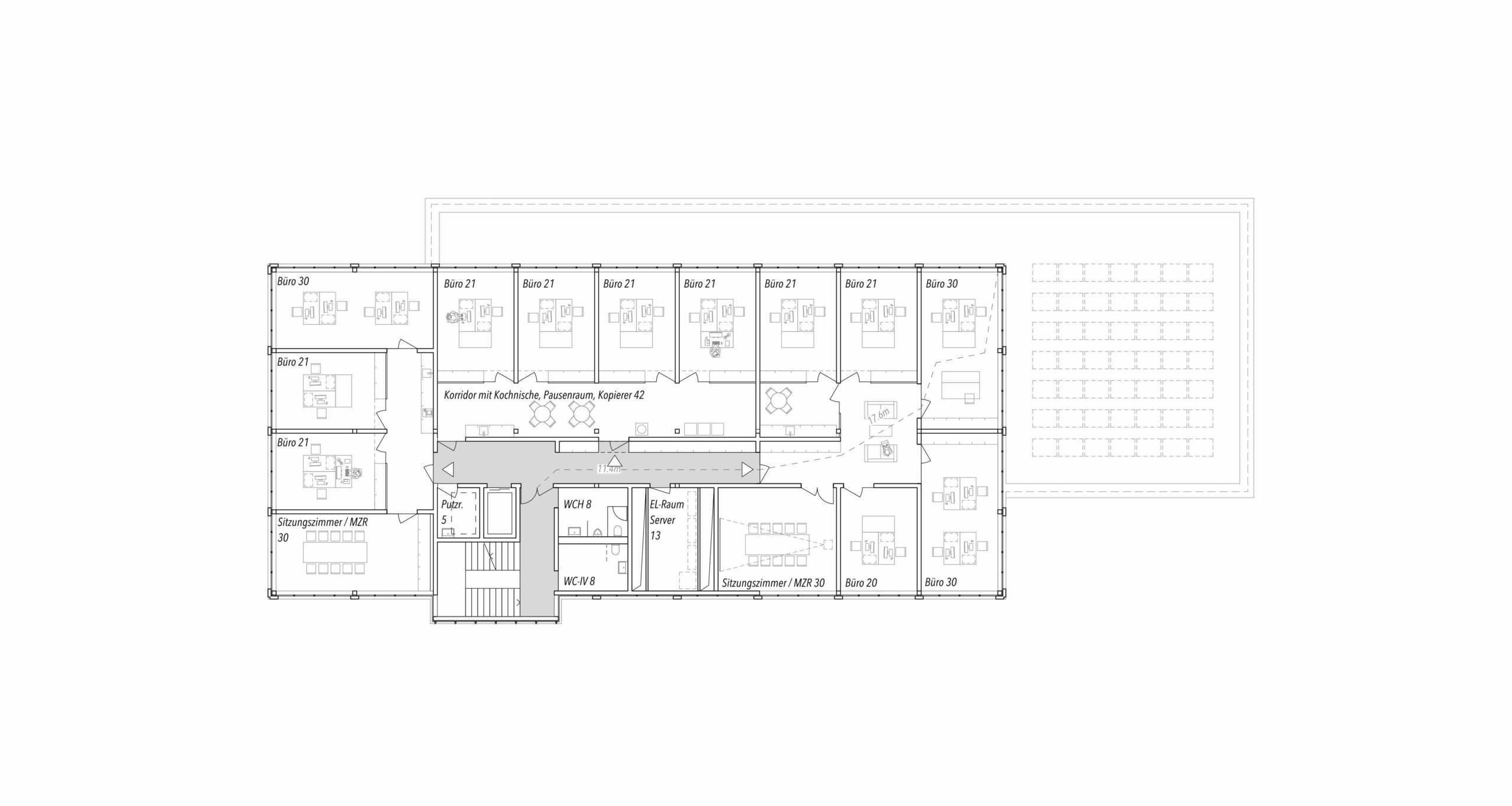
Auf der Westseite hingegen, entlang der Bahnlinie, erhebt sich ein fünfgeschossiger Gebäudeteil. Dieser bezieht sich bewusst auf den grösseren Massstab der Bahnseite und tritt in einen Dialog mit den gegenüberliegenden Gebäuden. Zudem bildet der fünfgeschossige Baukörper für die Zukunft des neuen Bahnhofs Thun Nord ein adressbildendes Element. Die Verbindungsräume zu den benachbarten Bauten werden gezielt unterschiedlich gestaltet: Im Süden ist der Abstand zur ehemaligen Speiseanstalt durch den niedrigen Baukörper bewusst geringgehalten und um den bestehenden Strassenraum fortzuführen, während im Norden der fünfgeschossige Körper zur Patronenfabrik einen platzartigen Raum aufspannt.
Diese unterschiedliche Abfolge der Zwischenräume gilt als typisches Merkmal entlang der Uttigenstrasse und verstärkt das Ensemble der drei Gebäude im Strassenzug. Mit dieser Strukturierung wird ein dynamisches, differenziertes Quartier geschaffen, das durch die Kombination aus Rücksichtnahme und markanter Setzung neue Qualitäten für urbanes Wohnen und Arbeiten entstehen lässt.










