SOZIALER WOHNUNGSBAU BURGFELDERSTRASSE

Das Areal der ehemaligen 3er-Tramschlaufe an der Burgfelderstrasse steht für eine neue Bebauung zur Verfügung. Der Kanton will an diesem Ort neue Wohnungen unter der Zielsetzung „Sozial, ökologisch, günstiger!“ schaffen.
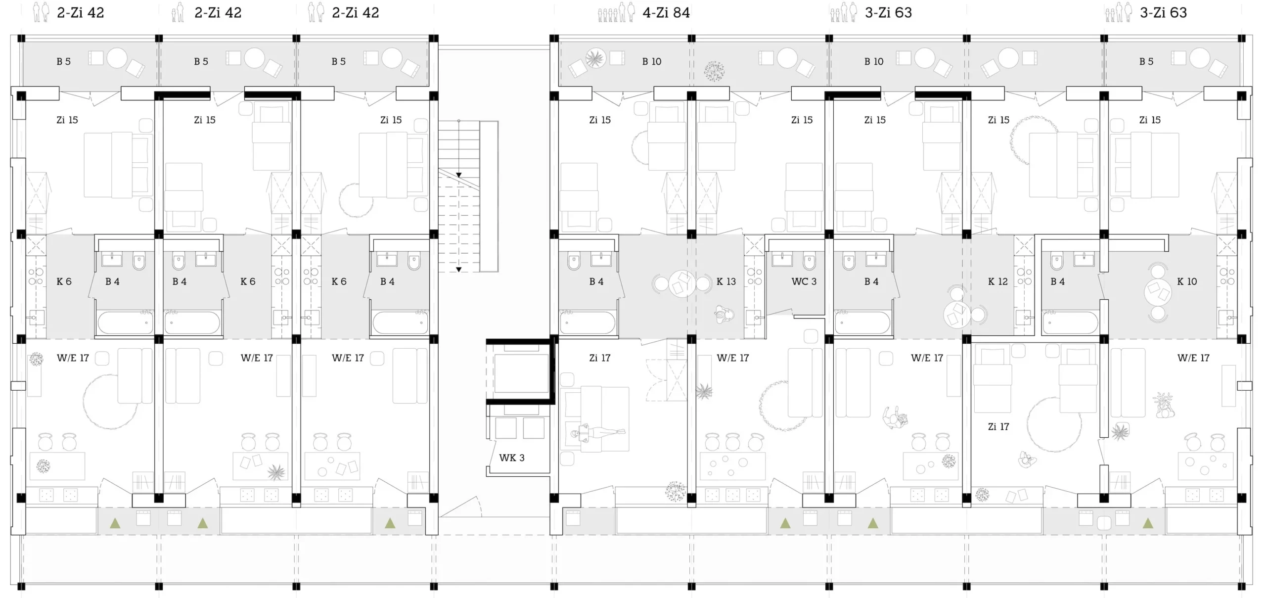
Der Neubau Köllax besticht durch seine Einfachheit und soll einem simplen Bücherregal gleichkommen. Alle Einheiten sind in dem Regal aufgestapelt und können je nach Bedarf umstrukturiert werden. In den Obergeschossen sind die einzelnen Wohnungstypen untergebracht, wobei die Kindergartenstruktur das Erdgeschoss prägt und den Übergang zum öffentlichen Raum bildet.