MFH WANKDORF
- ORT
Wankdorf Bern - NUTZUNG
Wohnen - BAUSCHAFT
Privat - LEISTUNGEN
Entwurf, Planung - JAHR
2025
Das in den 1950er-Jahren errichtete Mehrfamilienhaus im Wankdorfquartier in Bern ist Teil der Strukturgruppe Wankdorffeld und eingebettet in das städtebauliche Raster der Nachkriegsmoderne. Der Aussenraum wurde damals primär als funktionaler Grünraum verstanden, mit geringer Aufenthaltsqualität und eingeschränkten Nutzungsmöglichkeiten.
Während die Wohnungen im Innern weitgehend den heutigen Wohnbedürfnissen entsprechen, bestehen aussenräumliche und energetische Defizite. Eine gezielte Teilsanierung soll diese beheben und zugleich die Chance nutzen, das Gebäude und sein Umfeld zeitgemäss aufzuwerten.
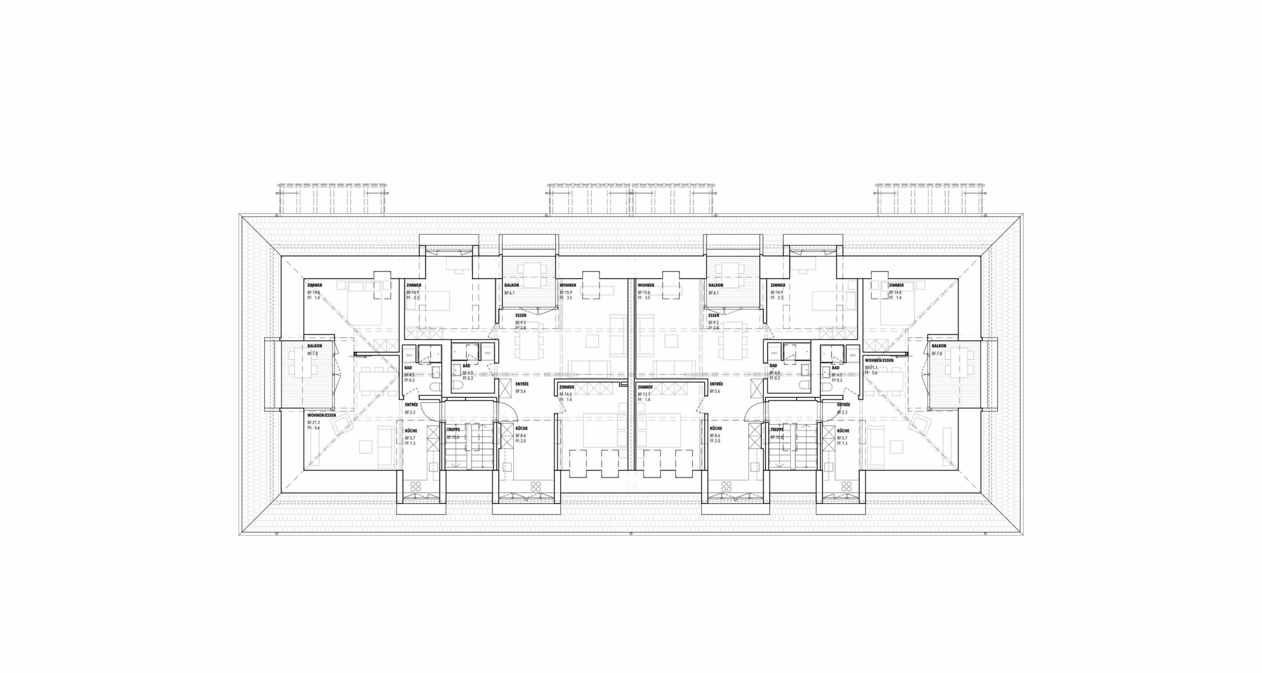
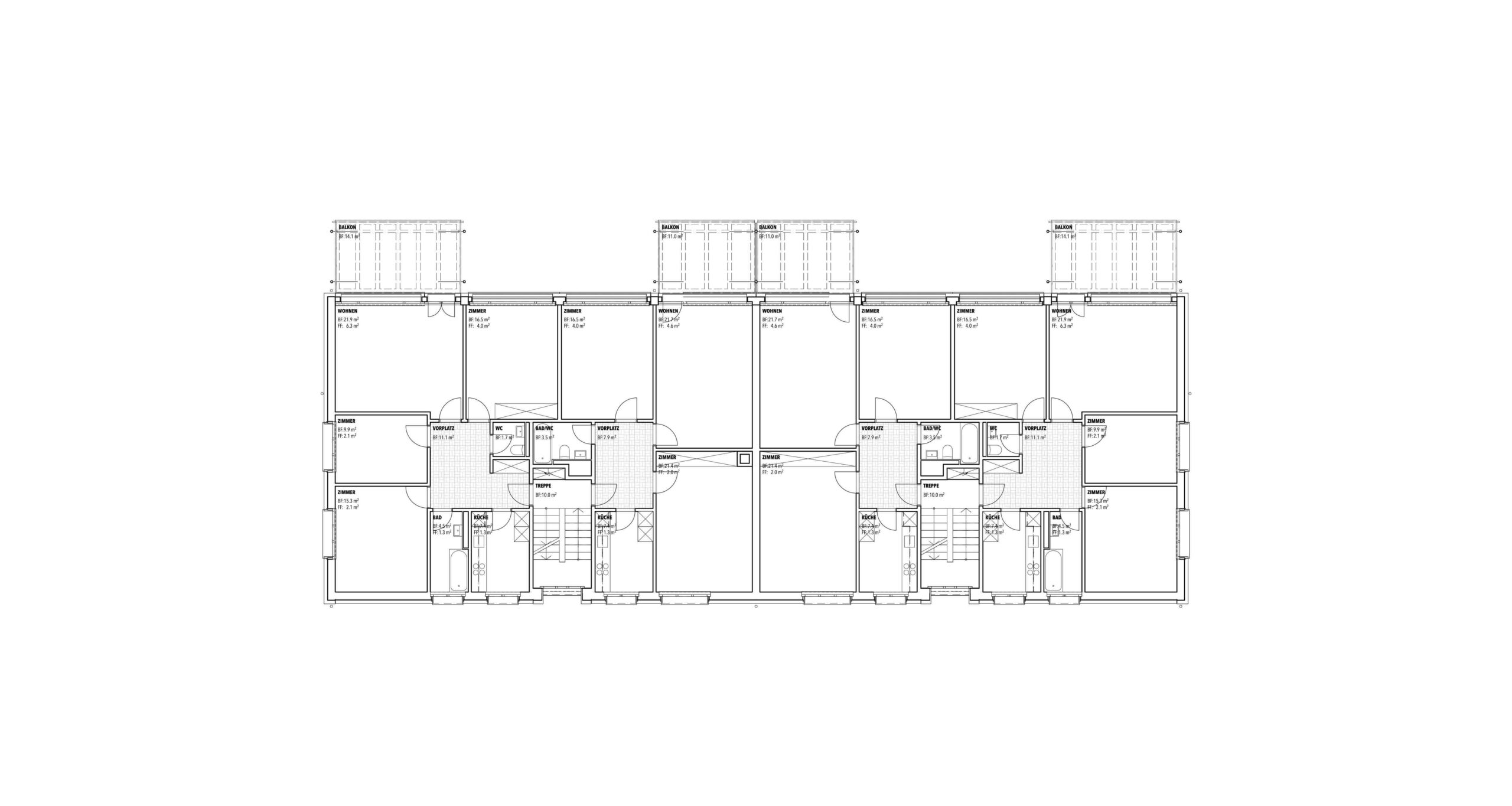
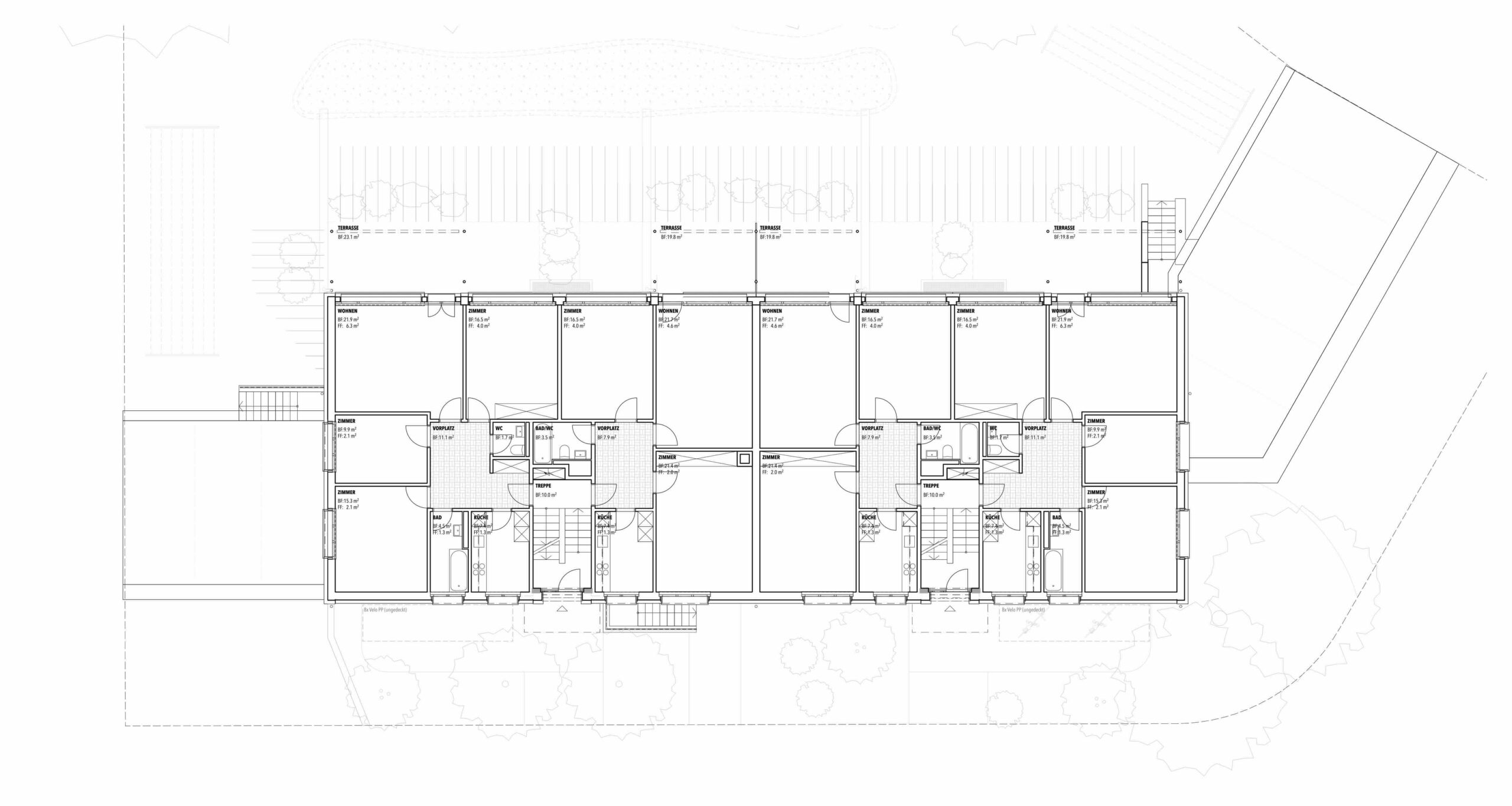
Im Fokus steht dabei die Neugestaltung der Balkone: Die bestehenden, klein dimensionierten Aussenräume sollen ersetzt und zu grosszügigeren, funktionalen Erweiterungen des Wohnraums ausgebaut werden. Zusätzlich soll das bislang ungenutzte Dachgeschoss ausgebaut werden. Geplant sind zwei Zwei- sowie zwei Dreizimmerwohnungen, alle mit mindestens einer Lukarne und einem eingezogenen Balkon.
Im Rahmen der Sanierung im bewohnten Zustand werden zudem die Wärmeerzeugung erneuert, die Fassade wärmetechnisch ertüchtigt und sämtliche Fenster ersetzt. Die Massnahmen sichern den langfristigen Erhalt der Bausubstanz und führen das Gebäude in eine nachhaltige, zukunftsfähige Nutzung über.








