GENOSSENSCHAFTLICHES WOHNEN FREISTATT

Die Freistatt ist geprägt von ihrer gleichmässigen Bebauung in einem schier unendlich langen, grosszügigen Freiraum, der sich um und zwischen den Gebäuden aufspannt. Die gleichgestalteten Bauten reihen sich in einem leichten Bogen entlang der Länggasse zweireihig auf und prägen mit der grossen Gartenanlage zur Strasse die Erscheinung und Identifikation des ganzen Quartiers. Sie erzählen die Geschichte einer Zeit, in der Wohnraum für die Arbeiterklasse effizient und seriell erstellt wurde und wo der Garten sowie der direkte Bezug dazu einen wichtigen Stellenwert im Leben der Bewohner einnahm.

Die Freistatt ist in ihrer physischen Präsenz, ihrer konstruktiven Ausgestaltung, vor allem aber dem Geist ihrer Geschichte wegen, ein wertvoller Teil der Stadt Thun, den es zu erhalten und weiterzuentwickeln gilt.

Lilly’s Kiste setzt den Quartierplatz als Auftakt an die Ecke Länggasse/Mattenstrasse und siedelt hier die unterschiedlichen öffentlichen und publikumsorientierten Nutzungen wie den Quartiertreff, das Bistro, die Post, Ateliers wie auch den Kindergarten und die Kita an. Es ist der zentrale Begegnungsraum, Auftakt in die Spielfelder der östlichen Siedlungsmitte und Verbindung zum neuen, dichten westlichen Siedlungsteil. 

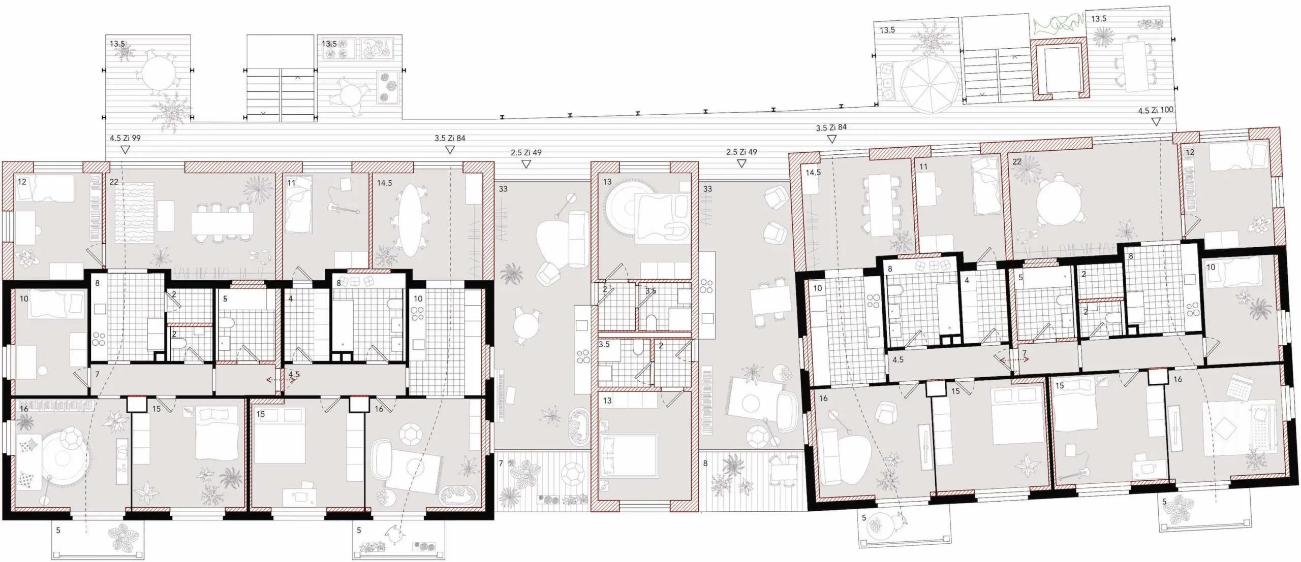
Dem Thema Weiterbauen verpflichtet wird die Gartenlandschaft entlang Länggasse übernommen und lässt zusammen mit der Integration des Bestandes der Gebäude die Geschichte der Siedlung ablesbar machen. Die Bauten werden bis auf ein Gebäude erhalten und aufgestockt. Anbauten als „Rucksäcke“ ins Innere der Siedlung zur „Gemeinsamen Mitte“ und Zwischenbauten zwischen den Gebäuden sorgen für die angestrebte Dichte. 
Das Unverwechselbare des Ortes im östlichen Teil des Gebietes bleibt damit erhalten.