GENOSSENSCHAFTLICHES WOHNEN DAHLIENWEG
- ORT
Dahlienweg Thun - NUTZUNG
Wohnen - BAUSCHAFT
WBG Stern - LEISTUNGEN
Studienauftrag, 1.Rang - JAHR
2024 - ARGE mit
akkurat bauatelier ag - LANDSCHAFT
META Landschaftsarchitektur GmbH - VISUALISIERUNG
Studio Blomen - JURYBERICHT
hier klicken - MEDIEN
hier klicken
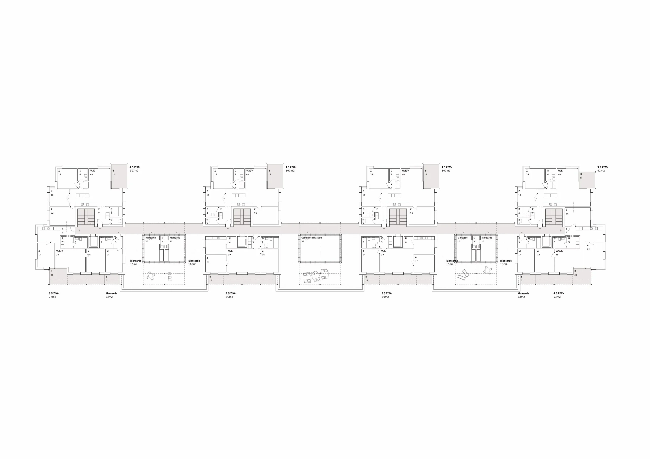
Die städtebauliche Setzung verfolgt die Idee, das Areal am Dahlienweg zu adressieren und dadurch eine Abfolge von Höfen auf der Gebäuderückseite zu schaffen, die unterschiedliche Freiraumtypologien aufnehmen kann. Erreicht wird dies durch eine innere Erschliessungsachse, die es sehr einfach macht, von Hof zu Hof zu gelangen und die verschiedenen Treppenhäuser untereinander verbindet, was das Selbstverständnis des Hauses als eine Einheit mit einer Nachbarschaft fördert.
Dieser Erschliessungsrückgrat fördert nicht nur die Mobilität innerhalb des Gebäudekomplexes, sondern trägt auch zur Verbindung von inneren und äusseren Räumen sowie zur Schaffung einer lebendigen, sozialen Atmosphäre bei.
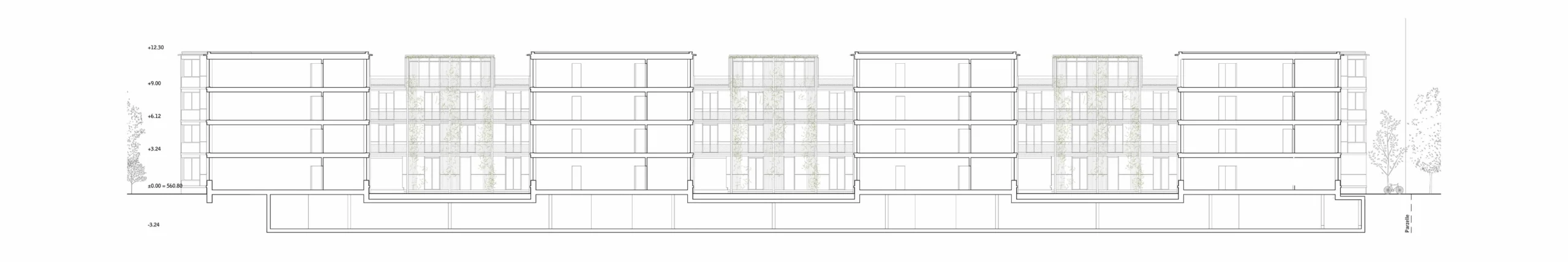
Der Ersatzneubau fungiert als Verbindungselement zwischen der grossflächigen Wohngenossenschaft BWG und den Punktbauten entlang der Gleise. Die städtebauliche Konzeption, welche eine kammartige Struktur vorsieht, prägt das Gebäude von allen Seiten. Die schmalen Stirnseiten zur Hofseite hin nehmen Rücksicht auf die Feingliedrigkeit der umliegenden Nachbargebäude, übernehmen deren Gebäudefluchten und ermöglichen einen sanften Übergang im Massstab. Eine dezente Rhythmisierung der sieben Gebäudeteile durchbricht die Länge der Fassade und präsentiert die vorwiegend dreigeschossige Längsfassade stolz entlang des Dahlienwegs.













